
医用气密自动门
产品特点:
防止冷风尘土进入有洁净要求的内部,保持恒湿及恒温。
门体运作轻快安静,减小空气流通量并具有良好的隔音效果。
在停电时,独特的拉手能使开启力更低。
门体设计人性化,保证医护人员,病人以及推车的安全通行,提升舒适感。



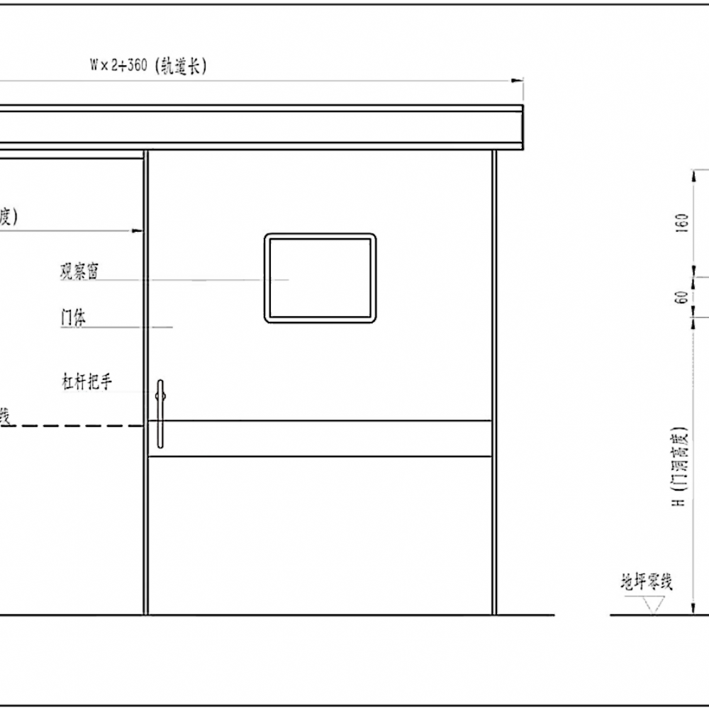
结构示图:

医用气密自动门的特点及技术参数的介绍 2022-11-8 17:05:10 本文被阅读 929 次
| 上一条:病房门的组成和特点是什么? | 下一条:净化工程,选材为先|优 质净化板,才是洁净空间的核心根基 |






联系人:王经理
联系电话:400-0329-919 18053087989 18005306737
公司地址:山东省菏泽市定陶区杜堂镇麟迹路北段路西(区中小企业园内)

医用气密自动门
产品特点:
防止冷风尘土进入有洁净要求的内部,保持恒湿及恒温。
门体运作轻快安静,减小空气流通量并具有良好的隔音效果。
在停电时,独特的拉手能使开启力更低。
门体设计人性化,保证医护人员,病人以及推车的安全通行,提升舒适感。



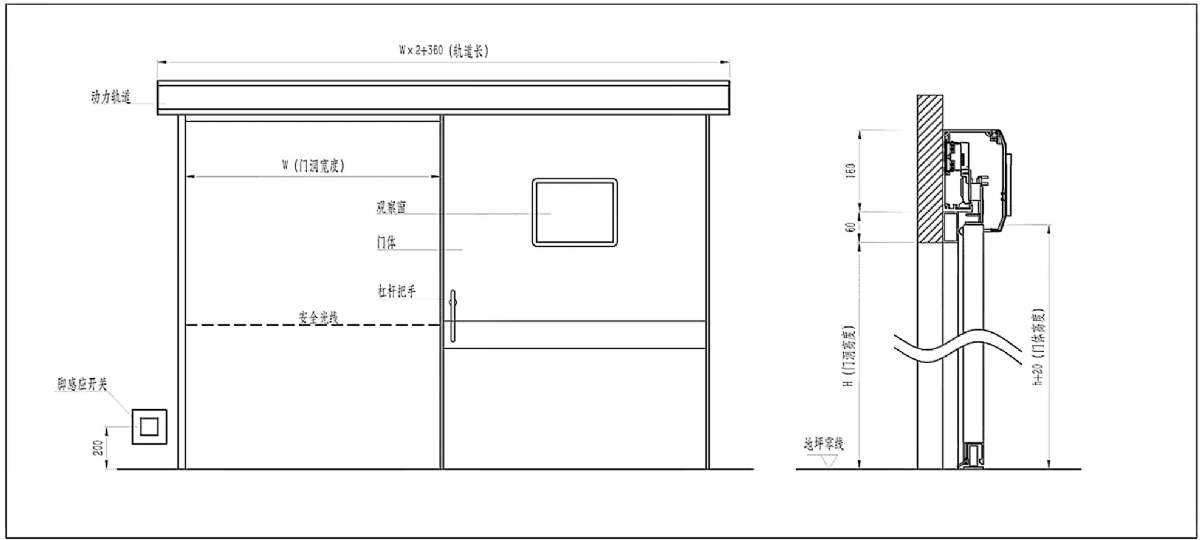
结构示图:

| 上一条:病房门的组成和特点是什么? | 下一条:净化工程,选材为先|优 质净化板,才是洁净空间的核心根基 |