
防辐射自动门

产品特点:
①门体内衬铅板,铅当量为1-31mmPb,可有效防止多种有害射线对人体造成的伤害,通过中国疾病预防控制中 心与核安全医学检测,符合X射线防护要求。
②门体动力梁与型材装有密封条,结构合理可靠,满足医院等场所的洁净要求。
③控制系统符合医用电气系统安全设计要求,运行安全平稳。
④不对同一环境的其他设备造成电磁干扰。
⑤门体采用平移式,美观大方。


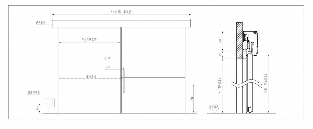
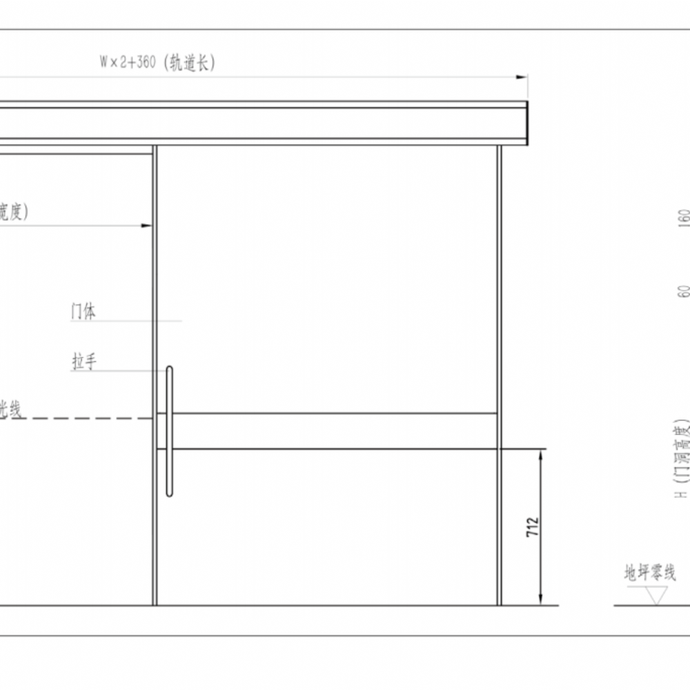
结构示图:

防辐射自动门产品的特点和结构组成 2022-11-20 9:38:16 本文被阅读 618 次
| 上一条:单开气密自动门的特点及构成是什么? | 下一条:净化工程,选材为先|优 质净化板,才是洁净空间的核心根基 |










