
铝合金平开手动门 双开

产品特点:
①门体造型经过专业的设计,形式多样,满足客户的个性化要求,适用于病房,污染门,辅助用房,办公室等场所。
②门洞包边具有多种形式,且配有耐磨的高 强 度 密封条,满足净化要求。
③门体采用发泡工艺,门框采用铝合金成品型材,符合医院的卫生要求。
④根据客户要求可配用门锁,闭门器和地弹簧等多种附件。
⑤采用高 品 质的五金配件,确保产品质量,增加产品寿命,也使门体看起来美观大方,使用性 高。


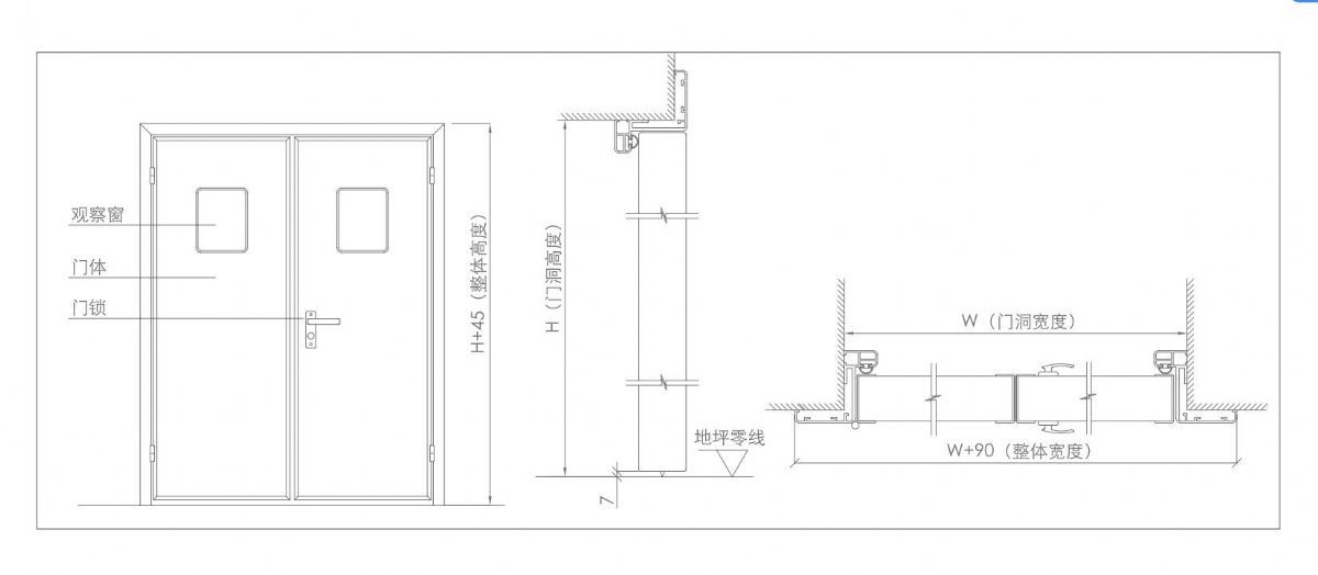
结构示图:

铝合金平开手动门 双开 的产品特点和结构介绍 2022-11-24 14:54:05 本文被阅读 1033 次
| 上一条:铝合金平开手动门 单开 的产品特点及结构介绍 | 下一条:净化工程,选材为先|优 质净化板,才是洁净空间的核心根基 |










