
双向自由防撞门

产品特点:
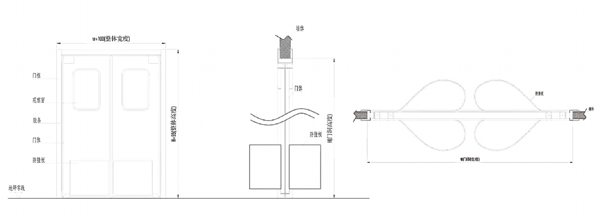
①不锈钢双向门门板表面采用 304 不锈钢拉丝板。镀锌防撞门门板采用 优 质 无油无花镀锌钢板 , 颜色可根据需要喷塑。门的四周采用 优 质 橡皮密封条。具备了防虫 , 隔尘 , 隔风 , 隔异味的功能 ,从而达到提高环境卫生的功效。双开门配上下胶链两套。门的下端安装了黑色橡塑防撞板 , 宽度根据门板尺寸定 , 正反二块。工作人员可驾驭叉车或者用小推车直接轻撞把门打开,使得出入极为便捷。
②视窗为 5mm 厚的透明有机玻璃 ( 亚克力板 ) 视窗 , 让您能清楚的看见门对面的情况避免发生碰撞。一般情况下 , 视窗有机片不会被撞坏 , 即使在特殊情况发生下 , 有机片被撞坏 , 那也只是以裂的形式出现 , 而不会以“碎”的形式出现 , 这样就可以有效的预防碎片造成的二次伤害。门板整体厚度 40mm。保温 , 隔热 ,耐腐蚀。门框的外框采用 304 不锈钢板 , 所有五金件均为不锈钢材质 , 大大增加了防撞自由门的使用寿命。
细节展示:

结构示图:

双向自由防撞门的产品特点和结构组成介绍 2022-12-9 14:55:19 本文被阅读 730 次
| 上一条:病房门 的产品特点和结构介绍 | 下一条:净化工程,选材为先|优 质净化板,才是洁净空间的核心根基 |









