
平开自动门

产品特点:
①平开门机可分为推臂式和拉臂式;推臂式根据不同场所出入口的特定需求专门设计传动机构,安装方式门机和门体反向。
②拉臂式根据不同场所出入口的特定需求专门设计传动结构,安装方式门机与门体同向。
③门机外挂于门框上,安装方便。
④门体系统采用微电脑芯片,智能控制门体运行开闭,开门角度可任意设置。
⑤根据客户要求选择多种控制方式,如传感器、门禁等。
⑥门框密封条与门扇底部的下沉式密封条配合,能完全满足医院、护理站、洁净厂家等场所的气密性需求。


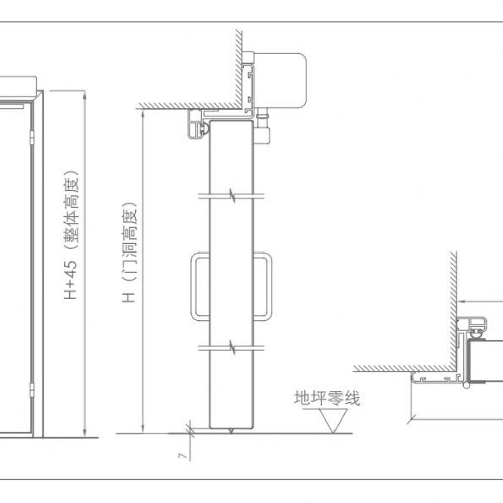
结构示图:

平开自动门产品特点及技术参数介绍 2022-11-15 16:54:10 本文被阅读 869 次
| 上一条:医用气密自动门的特点及技术参数的介绍 | 下一条:净化工程,选材为先|优 质净化板,才是洁净空间的核心根基 |










