
学校钢质门

产品特点:
①实用、耐用,是所有客户订购学校门基础的要求。根据此特点公司自主研发生产了这款高性价比,耐用性强的钢质学校教室门。表面静电粉末喷涂工艺,具有防锈,防撞,不掉色的特点。且喷塑工艺环保绿色节能,更符合 国家 要求,学生教室上课更加安全。比木门,HPL门要经济实惠。可以为学校提供两种材质:不锈钢材质或者镀锌钢板材质
②不锈钢学校教室门:采用304不锈钢拉丝板材,板材负差小,提高了门体的使用使用寿命。
③镀锌钢质学校教室门:采用镀锌钢板材质,静电喷涂工艺,防锈不掉色,性价比高。


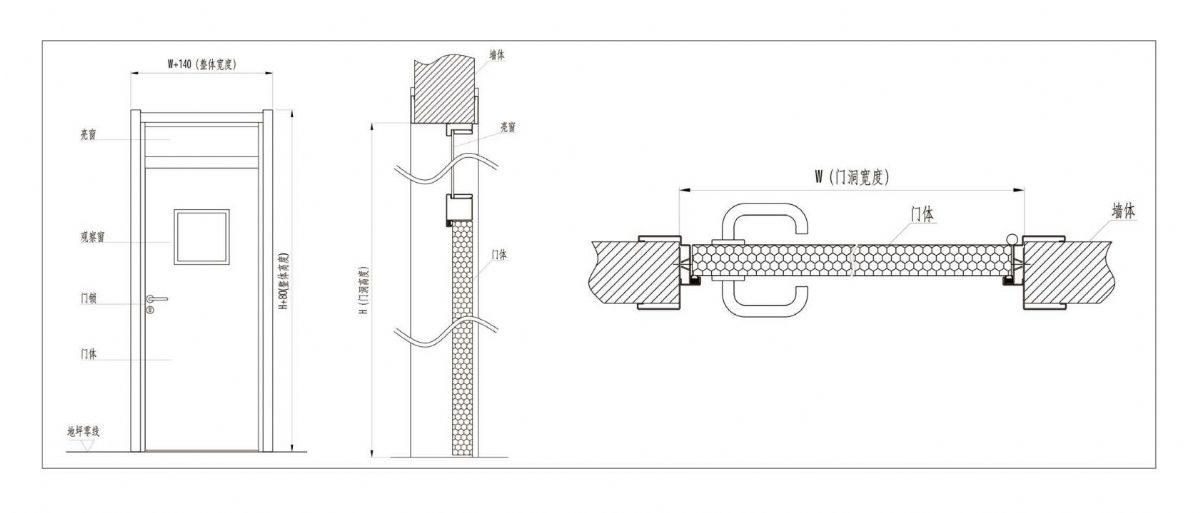
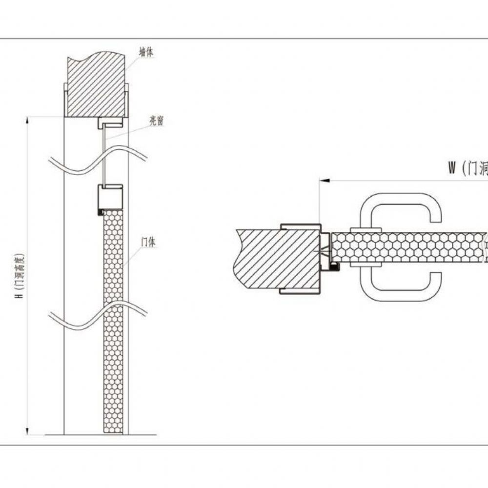
结构示图:

学校钢质门的产品特点及结构都是什么? 2022-11-29 9:28:34 本文被阅读 955 次
| 上一条:病房门的产品特点和结构组成介绍 | 下一条:净化工程,选材为先|优 质净化板,才是洁净空间的核心根基 |










