
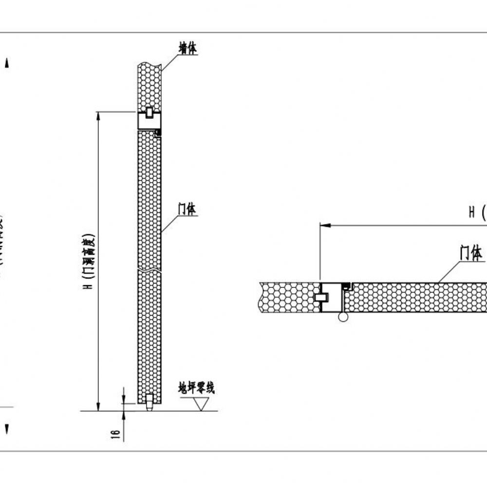
钢质净化门(平框)

产品特点:
①钢制门门框、门板采用优 质镀锌钢板喷塑。具有很优越的耐腐蚀性。
②三边采用高级密封条,底部选用升降扫地条,气密性强,有效的保证室内的净化效果。
③门板厚度50mm,芯材选用纸蜂窝或铝蜂窝填充,完全符合净化车间要求
④广泛适用于医院、制药、食品、电子等领域,也可制作手动防辐射门。
⑤平框钢质门适用于50mm-100mm型手工彩钢板上或土建墙上。安装简单便捷,门框与彩钢板两边齐平。无论是强度还是美观性,都是净化车间的佳 选择。此门亦可安装于各种尺寸的土建墙上。


结构示图:

钢质净化门(平框)的产品特点及参数介绍 2022-11-30 14:09:47 本文被阅读 991 次
| 上一条:学校钢质门的产品特点及结构都是什么? | 下一条:净化工程,选材为先|优 质净化板,才是洁净空间的核心根基 |










